Description

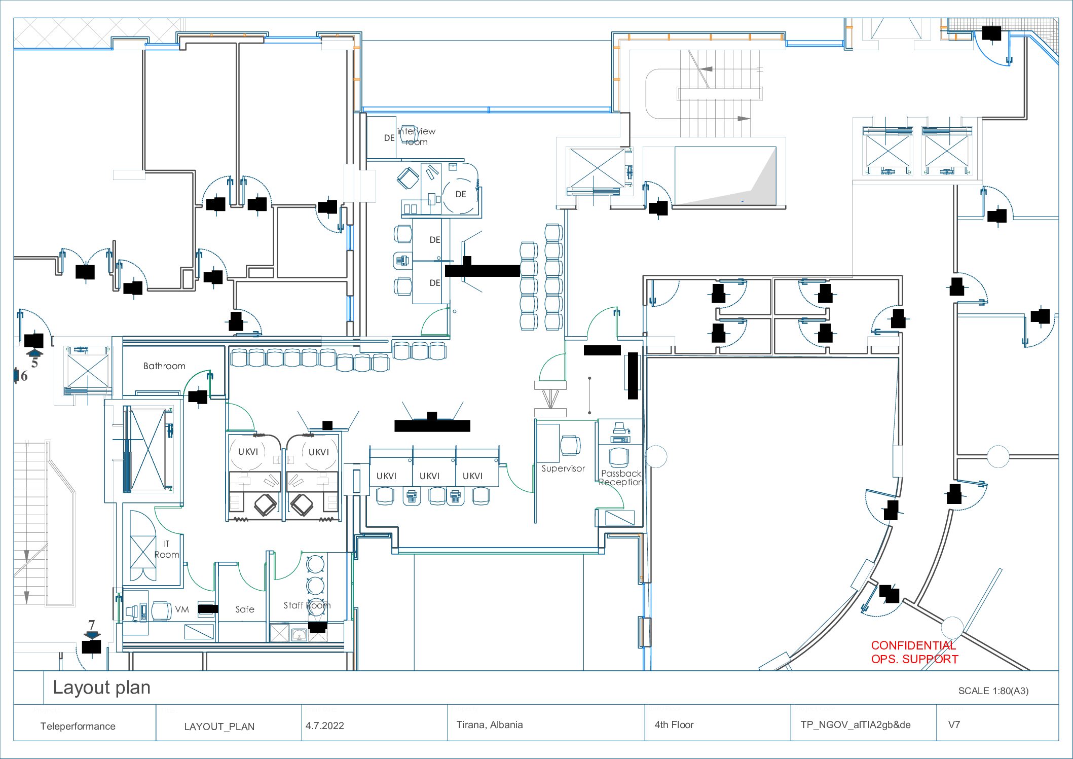
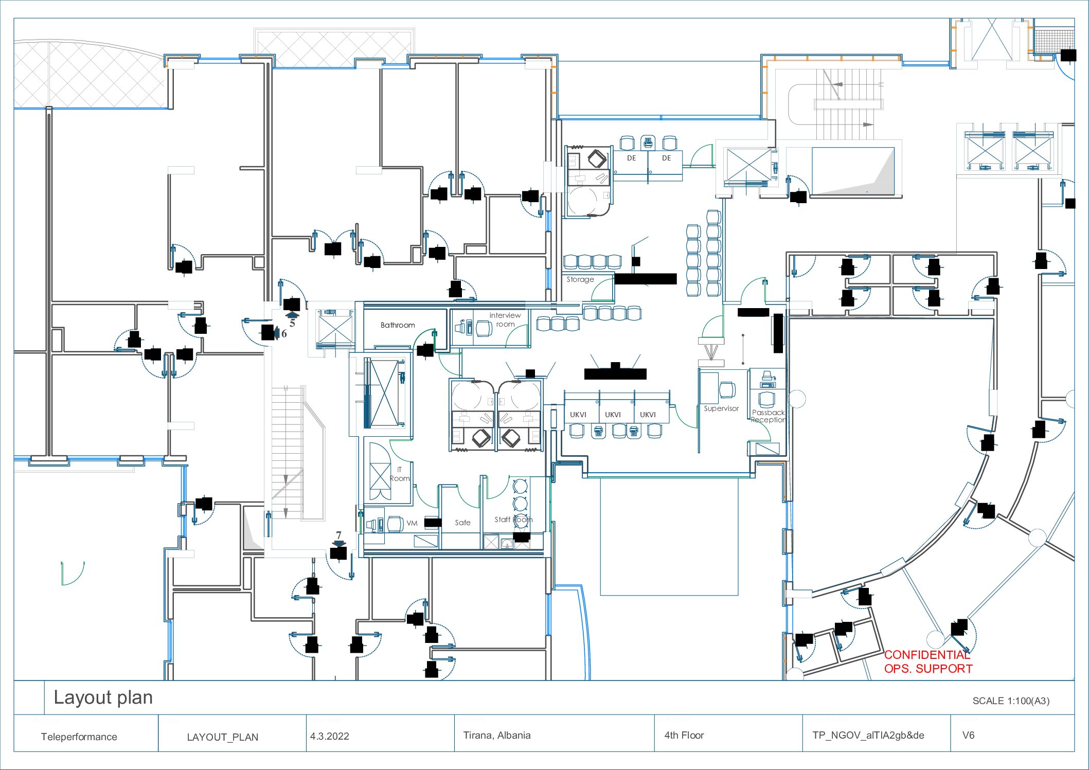
The TLScontact Düsseldorf project represents a sophisticated visa application center design that seamlessly integrates functional efficiency with contemporary aesthetics. This comprehensive facility features purpose-built service counters with precision-engineered specifications, incorporating high-quality materials including HPL white surfaces by Egger, classic oak wood veneers, and opal plexiglass accents to create a professional yet welcoming environment for visa applicants. The project encompasses specialized interview rooms for both German and UK visa services, along with advanced biometric processing stations equipped with integrated technology infrastructure for screens, keyboards, and barcode scanners.

The facility showcases meticulous attention to ergonomic design and operational workflow, with custom-built 120cm service counters featuring adjustable CPU holders, cable management systems, and sophisticated lighting solutions including Tunto hanging lamps. Each workspace is strategically designed to accommodate multiple functions while maintaining clean lines and professional presentation, supported by comprehensive technical infrastructure including power distribution, network connectivity, and security systems. The project demonstrates exceptional coordination between architectural planning and furniture design, creating an efficient processing environment that serves both staff operational needs and client service excellence within the Düsseldorf location.

Client
Teleperformance
Location
Düsseldorf, Germany
Still have questions?

Can’t find the answer you’re looking for? Write to us at info@myurban.vision or contact us through +355682084701.

Our Successful Works

Explore Our Project Showcase